



컬럼 테일 리프트는 매우 가벼워 차량이 더 무거운 하중을 운반할 수 있습니다. 설치는 차량 후면에 공간을 차지하지 않아 화물에 사용할 수 있는 공간을 최적화하고 다양한 요구 사항에 쉽게 적응할 수 있습니다.
구성
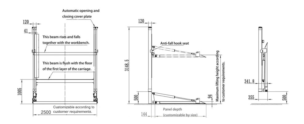
- 크기: 1800x1800mm, 1900x1800mm, 2000x1800mm, 2100x1800mm 2200x1800mm, 2300x1800mm, 2400x1800mm, 2500x1800mm, 2500x2300mm 또는 맞춤형.
- 재질: 강철/알루미늄.
- 적재 능력: 500-3000kg.
- 응용 프로그램: 박스 트럭, 박스 트레일러, 드롭사이드 트럭, 엔지니어링 차량, 소방차 등.
설명
- 테일 리프트는 완전 자동 균형 시스템을 갖춘 5기통 설계를 특징으로 합니다. 유압 시스템에는 지능형 메모리 기능이 포함되어 있어 보다 부드럽고 안전한 작동을 보장합니다.
- 두 세트의 전기 제어 시스템이 장착된 테일 리프트는 쉽고 편리한 작동을 제공합니다. 또한, 유압 시스템에는 작동 장애로 인한 사고를 방지하기 위해 안전 장치가 장착되어 있습니다.
- 심압대 유압 펌프, 유압 실린더, 씰, 유압 파이프 및 전기 시스템을 포함한 모든 주요 구성 요소는 고품질 구조로 되어 있어 뛰어난 성능과 신뢰성을 보장합니다.
- 가드레일 높이는 특정 요구 사항을 충족하도록 사용자 정의할 수 있으며 수직으로 조정할 수 있습니다. 표준 가드레일 높이는 1100mm(패널이 위를 향할 때)입니다. 가드레일은 접을 수 있으며 펼치면 자동으로 잠기며, 전면 도어는 열고 안전하게 잠글 수 있습니다.
- 플랫폼 패널의 너비와 깊이는 모두 고객 사양에 따라 사용자 정의할 수 있습니다. 시스템 전압은 고객의 요구에 따라 조정 가능하며, 패널 표면은 녹 방지를 강화하기 위해 분말 코팅되어 있습니다.”


